Background

Projetos que
conectam ideias.

Criamos experiências focadas em clareza, estética contemporânea e resultados reais.

Ver Portfólio
Reformas
Regularizações
Gestão de Obras
Projetos Técnicos
Projetos de Interiores
Elaboração de Planilhas de Obra PCI/PLS CAIXA
Laudos de Avaliações por Inferência Estatística

Trabalhos Selecionados

...

Reforma Apartamento JR

Edificio Castro Alves - Araraquara / SP

...

Detalhamento Marcenaria AAM

Ribeirão Preto / SP

...

Fachada RB

Village Damha III - Araraquara / SP

...

Projeto de Interiores MA

Condominio Quinta das Tipuanas - Araraquara / SP

...

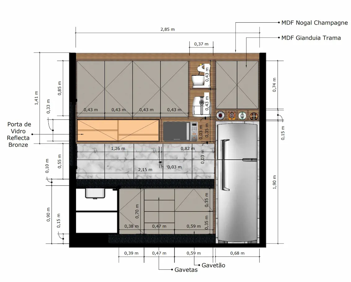
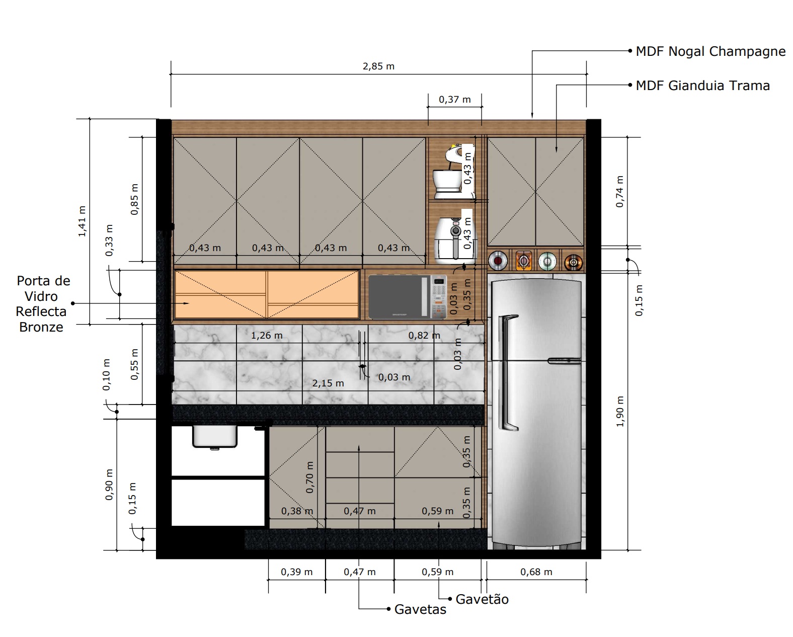
Cozinha ED

Marília / SP

...

Reforma EZ

Araraquara / SP

Expertise e Metodologia

Soluções

Solicitar Consultoria
Engenharia

Laudos de Avaliação por Inferência Estatística: Precisão e Normatização

Utilizamos um método aprimorado de análise de dados de mercado e regressão para estimar o valor de uma propriedade, reduzindo a subjetividade e oferecendo maior precisão nos resultados. Entregando valores de mercado incontestáveis, essenciais para decisões estratégicas em garantias bancárias, partilhas e processos judiciais. Unimos a conformidade técnica da NBR 14653 à clareza necessária para proteger seus interesses financeiros.

Financiamento

Gestão de Planilhas CAIXA (PCI/PLS): Viabilizando seu Financiamento Habitacional

Somos especialistas em processos da Caixa Econômica Federal, gerimos toda a documentação técnica (PCI/PLS) para garantir a aprovação do seu financiamento e a liberação contínua de parcelas. Com a expertise de mais de 300 serviços analisados, elaborados e entregues, nossa gestão está preparada para evitar paralisações por erros documentais, assegurando que o fluxo de caixa e o cronograma da sua construção sigam sem interrupções.

Execução

Acompanhamento Técnico e Gestão de Obras: projeto executado com qualidade, segurança e dentro do planejado

Sua obra entregue exatamente como projetada, com zero estresse. Nossa gestão técnica é focada na fidelidade absoluta ao conceito arquitetônico, aliando rigor construtivo a um controle de qualidade minucioso. Gerenciamos prazos e processos para que você desfrute da evolução do seu projeto, com a certeza de que cada detalhe seja executado com máxima perfeição e eficiência.

Vamos iniciar uma
nova conversa?

Seja para um projeto novo ou apenas para trocar ideias, sinta-se à vontade para entrar em contato diretamente.

contato@femgi.com.br
Fale Conosco
WhatsApp